En Venta
CASA DE 3 DORMITORIOS CON GALPON
Código: 177686

Mariano Moreno 500, Lincoln, Provincia de Buenos Aires, Argentina, Lincoln, Buenos Aires, Argentina.

USD120.000

Casa
Compartir esta Propiedad

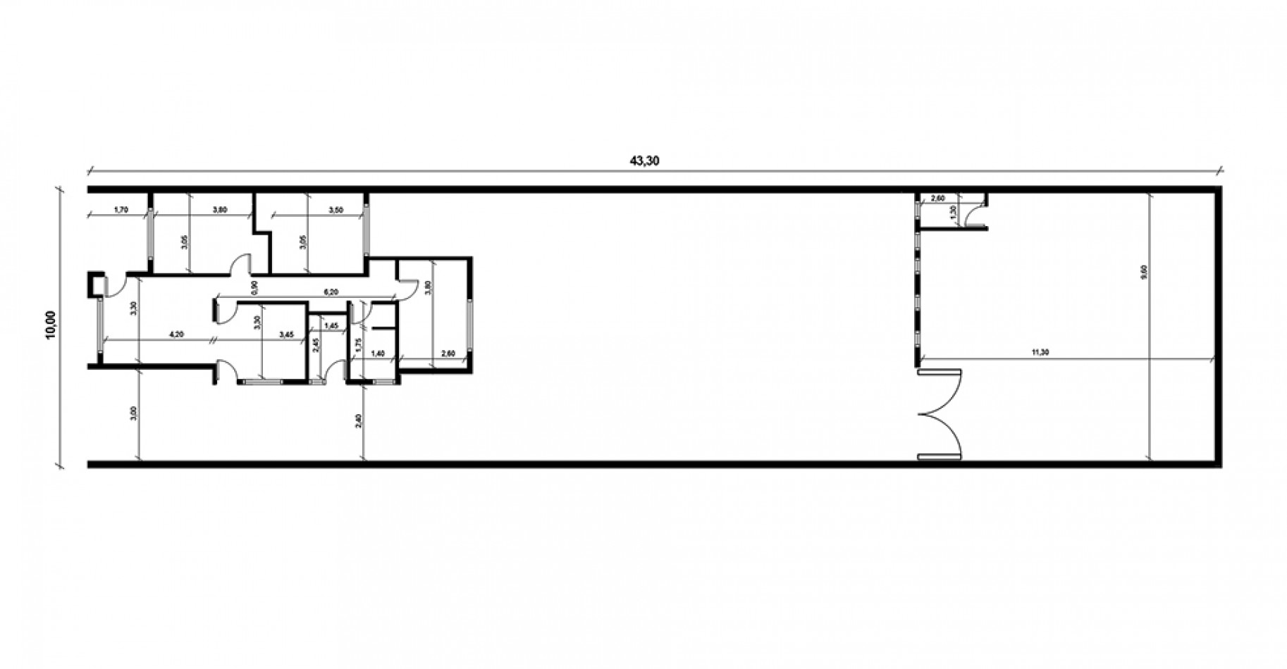
Descripción de la Propiedad

Sobre Calle Moreno al 600 - A 5 y ½ cuadras de La Plaza Rivadavia y 1 y ½ cuadra de Avenida 25 de Mayo - Superficie Total 433 m2 - Superficie Cubierta Casa: 125 m2 - Superficie Galpón: 116 m2 - Sobre Terreno de 10,00 x 43,30 mts. - Construida en Una Planta con Retiro de la Línea Municipal (2,50 mts. de Retiro) - Estar (3,30 x 4,20 mts.) - Cocina Comedor (2,85 x 3,45 mts.) - 3 Dormitorios con Placards (A= 3,05 x 3,80 mts. / B= 3,05 x 3,50 mts.) / C= 2,60 x 3,20 mts.) - Antebaño (1,00 x 1,40 mts.) - Baño Completo (1,40 x 1,75 mts.) - Lavadero (1,90 x 2,45 mts.) - Cochera Semicubierta (3,0 x 6,00 mts.) - Jardín (10,00 x 14,45 mts.) - Galpón con Baño (10,00 x 11,50 mts.) - Muy Buena Construcción - Sobre Pavimento y Todos los Servicios

Mas detalles
  • Calefactor a gas
  • Agua Corriente
  • Cloacas
  • Red Gas Natural
  • Cochera Semicubierta
  • Jardín
  • Lavadero Independiente
  • Antigüedad 40 años